【名鉄都市開発✖ ALPHA HOME】築35年の賃貸マンションを人気のインテリアMaterial modern styleにリノベーション!
■賃貸マンション『クレッセンド清水ヶ岡202号室』物件情報


クレッセンド清水ヶ岡は瑞穂区の閑静な住宅街にある賃貸マンションです。
地下鉄名城線「総合リハビリセンター」駅から徒歩5分、最寄りのスーパーや薬局も徒歩5分と、とっても好立地な場所に位置し、単身・2人入居、お子様がいるファミリーなど、全ての方に選んでいただける物件です。
八事の高級住宅街に位置し、憧れのエリアとなっております。
■リノベーションポイント


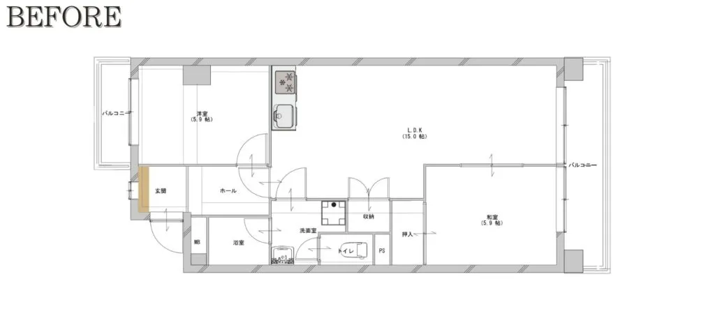
弊社では間取の変更、水廻り、内装の全てを一新するフルリノベーションをさせていただきました。
今回は居室を2部屋残し、ご入居されるお客様が自由な用途でお部屋を使用できる間取としました。
また、壁付けキッチンを流行りの対面キッチンに変更したり、一部壁を斜めに配置することで動線に余裕を与え、空間を広く見せたりしております。
インテリアのイメージは『Material modern style』。
コンクリート調、タイル調、木目調と様々な素材を同系色で合わせることにより、インテリアをまとめました。
2LDKの間取りにモダンなインテリアでご家族の方も、単身の方も、落ち着きのある暮らしができます。
pickup
【キッチン】
キッチンは自社設計のオーダーキッチンを設置しております。
マンションの形状や内装インテリアに合わせて造ることができるため、収納や作業スペースに無駄がなく、デザインと使いやすさを兼ね揃えたキッチンとなっております。
キッチンとお揃いのカップボードも設置しました。
【ニッチ】
LDKにはスイッチやリモコンをまとめるニッチスペースを設けました。
リモコンが壁から出っ張らず、壁に点在するスイッチをまとめて設置することで、すっきりとした印象になります。
また、自分好みの小物を飾ることでお気に入りのスペースとすることができます。
【水廻り設備】
ユニットバス、洗面化粧台、トイレも一新しております。
ユニットバスのアクセントパネルは内装に合わせたデザインを選び、お手入れのしやすい最新モデルを採用しております。
洗面化粧台は引出しホース付きのシャワー水栓、小物がたっぷり収納できる三面鏡を採用しております。
トイレはお掃除ラクラクなフチのない便器を採用しております。
■名鉄都市開発 ✖ ALPHA HOME

名鉄都市開発様所有のクレッセンド清水ヶ岡。
6年前にデザインリノベーションのご依頼をいただき、今まで10部屋以上の工事をさせていただきました。
エリアのニーズに合ったプランをご提案し、間取りやインテリア、現場の納め方についてなど、密にお打ち合わせさせていただき造り上げていきます。
■担当者の声
【director】名鉄都市開発 A・S H・Y
カラーは同系色でまとめることでスッキリした空間としながらも、LDKにはタイル調のアクセントクロスを採用することで重厚感を持たせました。また、浴室のサイズアップを行い、洗面室インであったトイレを別々の扉からの出入りとすることで、ご家族でも使い勝手の良い水廻りに変更しています。
【designer】アルファホーム名古屋 石田 樹里
部屋数にゆとりを持たせ、各お部屋には収納を設けることで、ご入居される方が快適に過ごすことのできる間取りをご提案させていただきました。
幅広い層の方から好まれるインテリアを取入れております。









